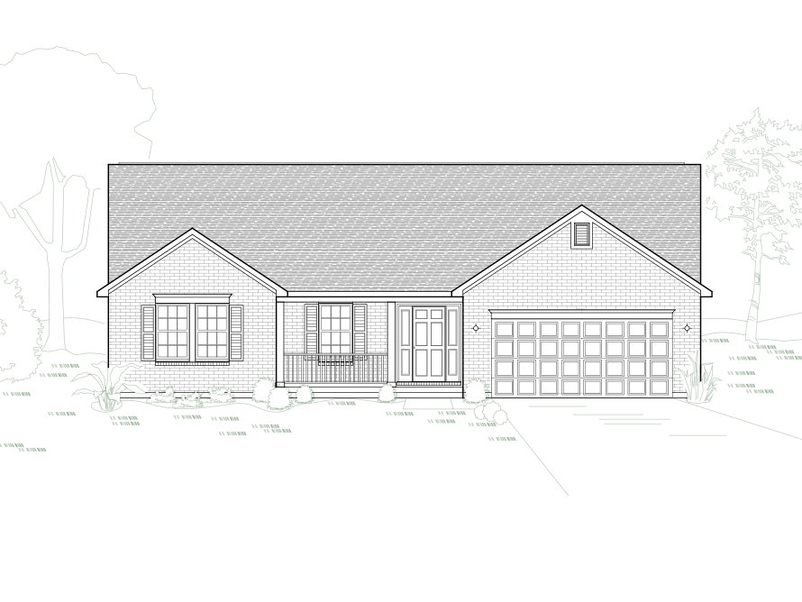
The Courtney
3 Bed • 2 Full Bath • 2 Garage • 1,745 ft2
Plan Type: 1 Story
Plan Style: Ranch
1st Floor
2 Car Garage
2 Full Baths
Cased Windows
Cathedral Ceiling
Double Bowl Vanity
Kitchen Island
Open Great Room / Kitchen
Stainless Appliances
Basement
Ready to Finish
Locations
Where this plan can be built:
Ballyshannon
Hunter’s Ridge
North Pointe
Westbrook Estates
Williamswoods


