2221 Shay Court, Union, KY 41091
Job Number: WB 177
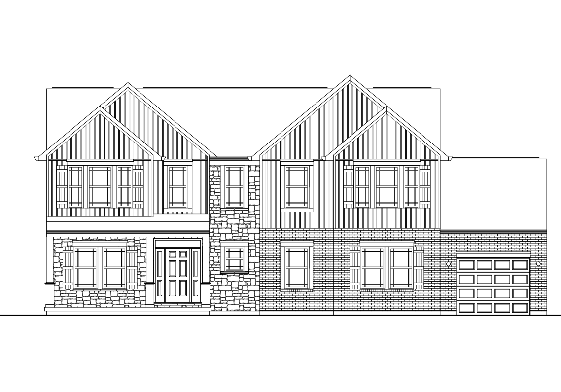
4 Bed • 2 Full Bath • 1 Half Bath • 3 Garage • 2,752 ft2
Floor Plan: The Rosewood
Community: Westbrook Estates
Call or text John Arlinghaus at 859-393-7794
$653,000
Under Construction
• Open Kitchen, Dining & Great Room
• Cathedtral Ceiling
• Electric Fireplace with Stone to Ceiling
• Built-in Double Ovens & Cooktop
• Walk-in Pantry
• Mudroom with Built-in Cubbies
• Study with French Doors
• Primary Suite with Tray Ceiling
• On-Suite with Soaker Tub & Split Vanities
• Tile Shower & Large Walk-in Closet
• Covered Outdoor Patio
• 3-Car Garage
• Open Staircase to Great Room & Kitchen Below
• Three Large Bedrooms with Walk-in Closets
• Hall Bathroom with Double Vanity
• Flexible Loft Area with Walk-In Storage Closet
• Unfinished Basement
• Rough-In for Future Half Bath
• High Efficiency Gas Furnace & Electric A/C
• Tankless Hot Water Heater
