8900 Cimmaron Trail, Union, KY 41091
Job Number: WB 157
4 Bed • 2 Full Bath • 2 Half Bath • 3 Garage • 3,499 ft2
Floor Plan: The Mariemont
Community: Westbrook Estates
Call or text John Arlinghaus at 859-393-7794
$663,900
Under Construction
• Open Kitchen, Dining & Great Room
• Walk-in Pantry
• 9ft Ceilings
• Electric Fireplace with Built-in Bookshelves
• Private Study with French Doors
• Mudroom with Cubbies
• Covered Wood Deck with Stairs
• 3-Car Garage
• Primary Bedroom with Tray Ceiling & Sitting
Area
• Primary Bath with Tile Shower, Garden Tub &
Large Walk-in Closet
• Hall Bath with Double Bowl Vanity
• Three Large Bedrooms with Walk-in Closets
• Second Floor Laundry
• Flexible Loft Area
• Walk-in Linen Closet
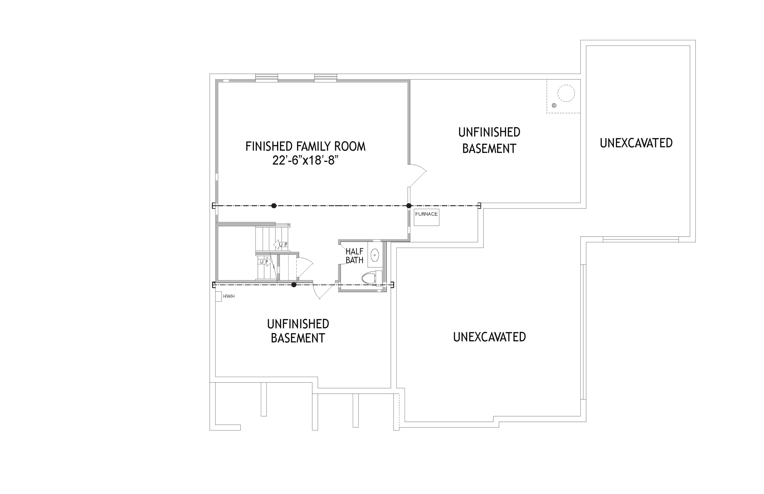
• Finished Family Room
• Finished Half Bath
• High Efficiency Gas Furnace & Electric A/C Unit
• Tankless Water Heater
