10174 Broadmeadow Drive, Independence, KY 41051
Job Number: MC 6
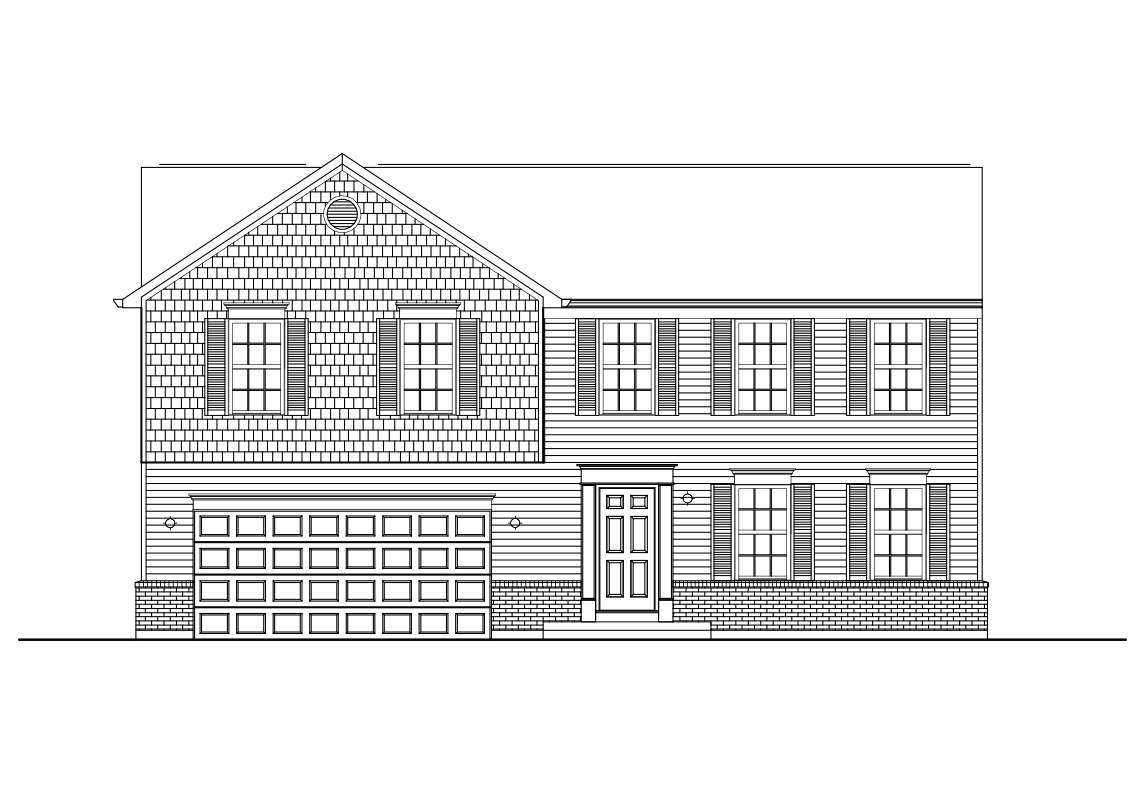
4 Bed • 2 Full Bath • 2 Half Bath • 2 Garage • 2,551 ft2
Floor Plan: The Jefferson
Community: Meadow Cove
Call or text Ted Arlinghaus at 859-466-7951
$393,000
Under Construction
• Open Kitchen, Dining & Great Room
• Walkout to Concrete Patio
• 2-Car Garage with Storage Area
• Spacious Primary Bedroom
• Primary Bath with Walk-in Closet
• Flexible Loft Area
• Second Floor Laundry
• Finished Family Room & Half Bath
• High Efficiency Electric Furnace & A/C Unit
• Electric Hot Water Heater
